1
Anzahl der Objekte: 1 | 1
Obj.: 1 | 1

Moderne Büroeinheit im Gewerbegebiet Bonn-Buschdorf zu vermieten

Außenansicht Bürofläche Bonn
Außenansicht
1.024,- €
 
modernes Treppenhaus Bürofläche Bonn
modernes Treppenhaus
modernes Treppenhaus Bürofläche Bonn
modernes Treppenhaus
Eingangsbereich mit Lichtkuppel Bürofläche Bonn
Eingangsbereich mit Lichtkuppel
Beispiel Büro Bürofläche Bonn
Beispiel Büro
Beispiel Büro Bürofläche Bonn
Beispiel Büro
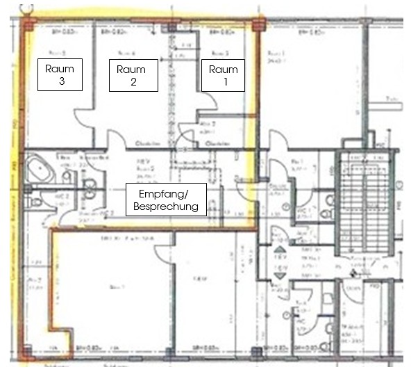
Grundriss 1. OG - rückseitig - Bürofläche Bonn
Grundriss 1. OG - rückseitig -

Objektart

Bürofläche

Adresse

53117 Bonn

Objektdaten

Objekt-Nr. H688
Fläche (ca.) 128 m²
Räume 4
Kaltmiete 1.024,- €
Informationen
Nutzfläche (ca.)
128 m²
Zustand
gepflegt
Ausstattung
Details
Stellplatzart
Freiplatz
Bodenbelag
Fliesen

Größe:

Einheit 2: ca. 128 m² im 1. Obergeschoss einer modernen Gewerbeliegenschaft.


Aufteilung:

3 Büroräume, großer Empfangsbereich, 1 WC, 2 Möglichkeiten für Anschlüsse einer Teeküche.

Die genaue Aufteilung entnehmen Sie bitte dem beiliegenden Grundriss (nicht maßstabsgerecht).

Die Ausstattung ist absolut modern.

Hier einige Beispiele:

•KAT-5 Verkabelung
•EDV-gerechte Deckenbeleuchtung
•modernes WC
•Anschlüsse für eine Teeküche
•grau geflieste Böden
•isolierverglaste Fenster mit elektrischen Rollläden
•Gasheizung
•Warmwasser über Durchlauferhitzer
•Gegensprechanlage
•modernes Treppenhaus

Zur Einheit gehört 1 Pkw-Stellplatz.

Hier im Norden befindet sich das größte ausgewiesene Gewerbegebiet der Stadt Bonn, welches vor allem in den vergangenen 10 Jahren einen enormen Zuwachs erfuhr. Entsprechend zeitgemäß ist die Architektur der Gebäude und hochwertig sind die Standards der Flächen. Aufgrund der hervorragenden Verkehrslage und der Nähe zu Köln haben viele Betriebe hier Ihren Standort gewählt.

Die Autobahnanschlüsse A 555 (Köln-Süd) und 565 (Flughafen Köln/Bonn) liegen sozusagen vor der Tür. Die Gebietsstruktur wird geprägt durch Verwaltungsgebäude, Dienstleistungsbetriebe und Fachmarktflächen.

Bezug:

Ab sofort bzw. nach Vereinbarung möglich.


Mietpreis:

EUR 1.024,00 zzgl. Nebenkosten und Mehrwertsteuer monatlich

Das entspricht einem m²-Preis von EUR 8,00.

Der Pkw-Stellplatz kostet EUR 40,00 monatlich.


Kaution:

Verhandlung.




Energieausweis:

Verbrauchsausweis für Nichtwohngebäude vom 23.04.2025
Energieverbrauch Wärme: 326 kWh (m²·a)
Energieverbrauch Strom: 16 kWh (m²·a) inkl. Warmwasser
Energieträger: Erdgas H HS
Baujahr Bürohaus: 1995


Provision:

Bitte berücksichtigen Sie die im Falle der Anmietung vom Mieter zu zahlende Provision in Höhe von:

2,38 Monatsmieten bei Verträgen bis zu 5 Jahren,
4,76 Monatsmieten bei Verträgen über 5 Jahre,

jeweils inklusive Mehrwertsteuer, Optionszeit = Laufzeit.


Besichtigung:

Eine Besichtigung ist jederzeit nach vorheriger Terminabsprache mit unserem Büro möglich.


Hinweis:

Wir sind selbstverständlich bemüht, alle Angaben so richtig wie möglich an Sie weiter zu geben. Da wir uns auf die Informationen des Auftraggebers stützen müssen, über-nehmen wir dafür keine Gewähr.

Besteht Vorkenntnis bei dem hier angebotenen Objekt, bitten wir Sie, uns dies unverzüglich mitzuteilen.

Ansprechpartner

Bettina Hucko e. K.
Telefon: (0228) 934 900 6-0
Telefax: (0228) 934 900 6-99
bonn@hucko.de

Energieausweis (Verbrauchsausweis)

Energieausweis-Skala bis 790px
Energieausweis Positions Pfeil bis 790px 326 kWh / (m²*a) Energieverbrauchskennwert
Energieausweis-Skala bis 623px
Energieausweis Positions Pfeil bis 623px 326 kWh / (m²*a) Energieverbrauchskennwert
Energieausweis-Skala bis 768px
Energieausweis Positions Pfeil bis 768px 326 kWh / (m²*a) Energieverbrauchskennwert
Energieausweis-Skala bis 481px
Energieausweis Positions Pfeil bis 481px 326 kWh / (m²*a) Energieverbrauchskennwert
Energieausweis-Skala bis 320px
Energieausweis Positions Pfeil bis 320px 326 kWh / (m²*a) Energieverbrauchskennwert
Weitere Informationen
Wesentlicher EnergieträgerGas
Energieausweis Ausstelldatum2025-04-23
Energieausweis Jahrgangab dem 1.5.2014
Energieausweis Wärmewert326 kWh / (m²*a)
Energieausweis Baujahr1995
Energieausweis GebäudeartGewerbe
HeizungZentralheizung
BefeuerungGas

Ich bin damit einverstanden, dass mir Karten von Google angezeigt werden. Es gelten die Datenschutzbedingungen von Google (https://policies.google.com/privacy).

Ich bin einverstanden

Objektanfrage

Sie haben noch Fragen zu dem Angebot oder wollen einen Besichtigungstermin vereinbaren, dann füllen Sie einfach das untenstehende Formular vollständig aus und wir setzen uns schnellstmöglich mit Ihnen in Verbindung.

* Pflichtfelder