1
Anzahl der Objekte: 1 | 1
Obj.: 1 | 1

Außergewöhnliches Büro mit bester Verkehrsanbindung in ruhiger Lage von Bonn-Lengsdorf zu vermieten

Aussenansicht Bürofläche Bonn
Aussenansicht
1.250,- €
 
1. OG mit Wendeltreppe ins 2. OG Bürofläche Bonn
1. OG mit Wendeltreppe ins 2. OG
Wendeltreppe ins 2. OG Bürofläche Bonn
Wendeltreppe ins 2. OG
Blick vom 2. OG ins 1. OG Bürofläche Bonn
Blick vom 2. OG ins 1. OG
Teeküche Bürofläche Bonn
Teeküche
Empfang 1. OG Bürofläche Bonn
Empfang 1. OG
Eingangsseite Auf dem Kirchbüchel 3 Bürofläche Bonn
Eingangsseite "Auf dem Kirchbüchel 3"
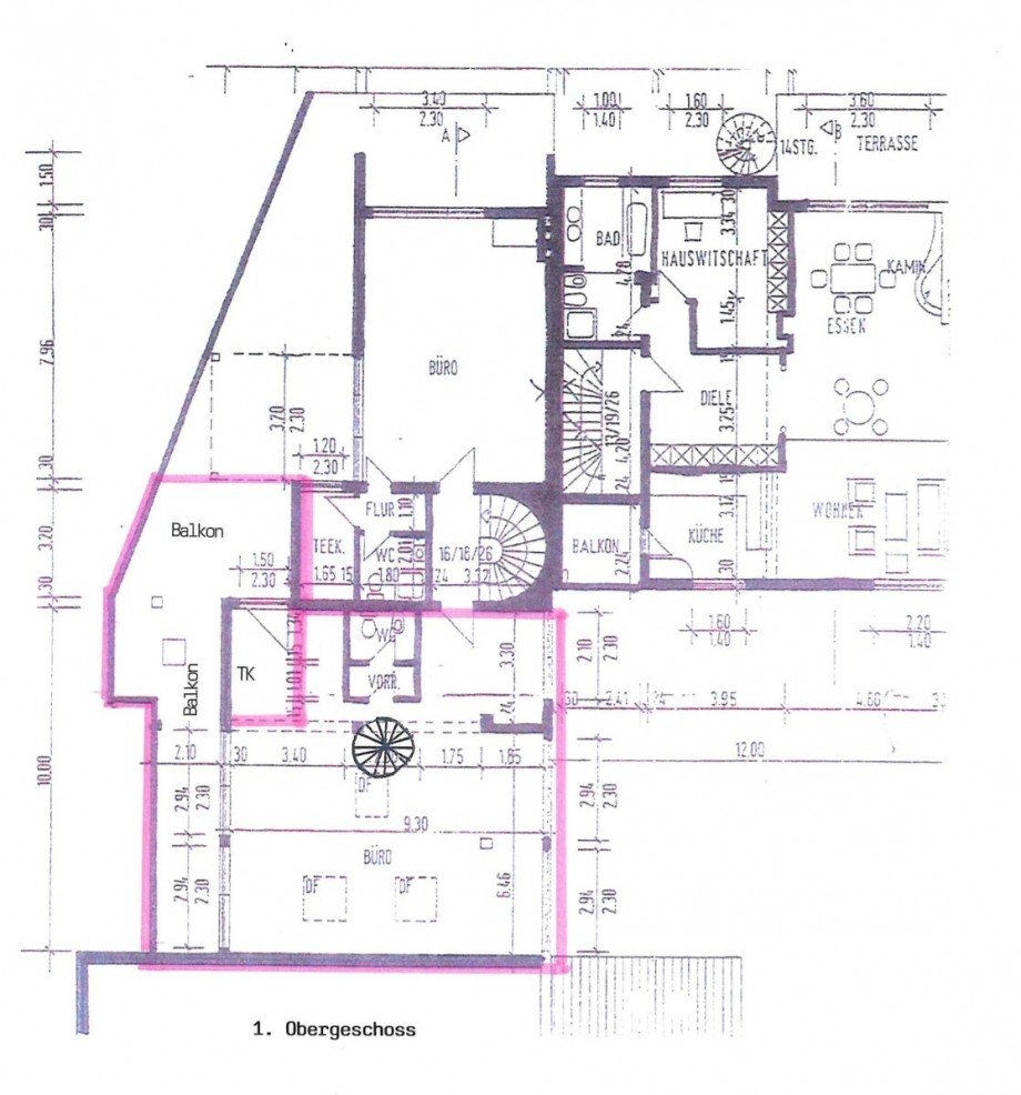
Grundriss 1. OG Bürofläche Bonn
Grundriss 1. OG
Grundriss 2. OG Bürofläche Bonn
Grundriss 2. OG

Objektart

Bürofläche

Adresse

53127 Bonn - Bonn-Lengsdorf

Objektdaten

Objekt-Nr. H700
Fläche (ca.) 170 m²
Räume 4
Kaltmiete 1.250,- €
Informationen
Nutzfläche (ca.)
170 m²
Zustand
gepflegt
Ausstattung
Details
Etage
1
Stellplatzart
Freiplatz
Bodenbelag
Stein
Provision für Mieter
2 Monatsmieten

Größe:

Ca. 170 m², verteilt auf 1. und 2. Obergeschoss, intern verbunden mit einer Wendeltreppe.

Zum Büro gehört eine große und trockene Archivfläche.


Aufteilung:

1.Obergeschoss:
Empfangsbereich, ein großes Büro mit mehreren Arbeitsplätzen, WC


2.Obergeschoss:
Zwei Büros, Teeküche, großes Badezimmer, großer Balkon

Die genaue Aufteilung entnehmen Sie bitte den beiliegenden Grundrissplänen (nicht maßstabsgerecht).

Ausstattung:

Die Ausstattung besticht durch die großen, teils bodentiefen Fensterfronten und Glaswänden innerhalb des Büros.

Hier einige Beispiele:

-Isolierverglaste Fenster mit Lamellen und teilweise Rollläden
-Marmorboden
-Kat-5-Verkabelung
-Glasfaser liegt im Haus
-WC im 1. OG
-Großes Bad im 2. OG
-Teeküche mit Aufenthaltsmöglichkeit im 1. OG
-Großer Balkon im 1. OG zur Straße „Auf der Kaiserfuhr“
-Glaswände innerhalb des Büros
-Wendeltreppe zwischen den beiden Etagen
-2 PKW-Stellplätze auf dem Grundstück (in der Miete enthalten)
-Großer, trockener Kellerraum
-Beheizung über eine neue Gas-Zentralheizung

Eine Besichtigung wird Sie überzeugen!

Lengsdorf ist ein Ortsteil von Bonn im Stadtbezirk Hardtberg.

Supermärkte und Discounter befinden sich in fußläufiger Nähe.

Hervorzuheben ist die Nähe zur A565, von wo aus Sie in alle Richtungen kommen.

Mietpreis:

Der Mietpreis beträgt:

EUR 1.250,00 zzgl. Nebenkosten (derzeit EUR 395,00) zzgl. Mehrwertsteuer monatlich


Bezug:

Ab dem 01.06.2026 bzw. nach Absprache


Kaution:

Verhandlung.



Energieausweis:

Energieverbrauchsausweis für Wohngebäude vom 09.03.2026, gültig bis 08.03.2036.
Energieverbrauch Heizung und Warmwasser: 100,1 kWh (m²•a)
Energieträger: Gas
Baujahr des Hauses 1980


Provision:

Bitte berücksichtigen Sie die im Falle der Anmietung vom Mieter zu zahlende Provision in Höhe von:

2,38 Monatsmieten bei Verträgen bis zu 5 Jahren,
4,76 Monatsmieten bei Verträgen über 5 Jahre,
jeweils inklusive Mehrwertsteuer, Optionszeit = Laufzeit.


Besichtigung:

Jederzeit nach vorheriger Terminabsprache mit unserem Büro möglich.


Hinweis:

Wir sind selbstverständlich bemüht, alle Angaben so richtig wie möglich an Sie weiterzugeben. Da wir uns auf die Informationen des Vermieters stützen müssen, übernehmen wir dafür keine Gewähr.

Ansprechpartner

Bettina Hucko e. K.
Telefon: (0228) 934 900 6-0
Telefax: (0228) 934 900 6-99
bonn@hucko.de

Energieausweis (Verbrauchsausweis)

Energieausweis-Skala bis 790px
Energieausweis Positions Pfeil bis 790px 100 kWh / (m²*a) Energieverbrauchskennwert
Energieausweis-Skala bis 623px
Energieausweis Positions Pfeil bis 623px 100 kWh / (m²*a) Energieverbrauchskennwert
Energieausweis-Skala bis 768px
Energieausweis Positions Pfeil bis 768px 100 kWh / (m²*a) Energieverbrauchskennwert
Energieausweis-Skala bis 481px
Energieausweis Positions Pfeil bis 481px 100 kWh / (m²*a) Energieverbrauchskennwert
Energieausweis-Skala bis 320px
Energieausweis Positions Pfeil bis 320px 100 kWh / (m²*a) Energieverbrauchskennwert
Weitere Informationen
Wesentlicher EnergieträgerGas
Energieausweis Ausstelldatum2026-03-09
Energieausweis gültig bis08.03.2036
Energieausweis Jahrgangab dem 1.5.2014
Energieausweis Wärmewert100 kWh / (m²*a)
Energieausweis WerteklasseC
Energieausweis Baujahr1980
Energieausweis GebäudeartGewerbe
HeizungZentralheizung
BefeuerungGas

Ich bin damit einverstanden, dass mir Karten von Google angezeigt werden. Es gelten die Datenschutzbedingungen von Google (https://policies.google.com/privacy).

Ich bin einverstanden

Objektanfrage

Sie haben noch Fragen zu dem Angebot oder wollen einen Besichtigungstermin vereinbaren, dann füllen Sie einfach das untenstehende Formular vollständig aus und wir setzen uns schnellstmöglich mit Ihnen in Verbindung.

* Pflichtfelder