1
Anzahl der Objekte: 1 | 1
Obj.: 1 | 1

„Auf gute Geschäfte!“ Ihr neuer Laden am Münsterplatz -VERMIETET-

Frontansicht Ladenlokal Bonn
Frontansicht
10.000,- €
 
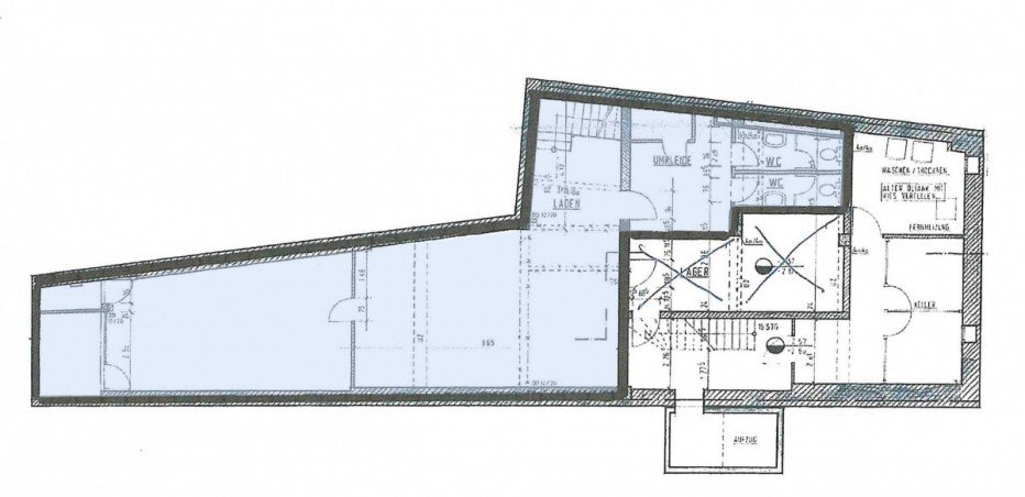
Grundriss EG Ladenlokal Bonn
Grundriss EG
Grundriss UG Ladenlokal Bonn
Grundriss UG
Frontansicht

Objektart

Ladenlokal

Adresse

53111 Bonn - Innenstadt

Objektdaten

Objekt-Nr. H605L
Fläche (ca.) 150 m²
Kaltmiete 10.000,- €
Informationen
Nutzfläche (ca.)
210 m²
Zustand
gepflegt
Ausstattung
Unterkellert
Details

Größe:
Erdgeschoss: ca. 150 m²
Lager im Untergeschoss: ca. 60 m²

Hier einige Details:

-faltbares Schaufenster
-Luftschleier
-abgehängte Decke
-Beheizung über Fernwärme
-getrennte WC´s und Lager im Keller mit direktem Zugang zum Laden

Derzeit ist der Laden an eine Bäckereifiliale mit Außengastronomie vermietet.

Absolut zentral in der Bonner Innenstadt, direkt am Münsterplatz, einem der schönsten Plätze von Bonn. Geprägt wird dieser Platz vom Bonner Münster, der alten Hauptpost und dem berühmten Beethovendenkmal. In unmittelbarere Nähe befinden sich die Warenhäuser: Kaufhof, Karstadt und Sinn Leffers.

Das rege Treiben auf dem Münsterplatz wird noch gefördert durch den Weihnachtsmarkt und zahlreiche Veranstaltungen.
Der Bonner Hauptbahnhof ist mit allen U-Bahn- und Busverbindungen sowie Flughafenlinie nur einen „Katzensprung“ entfernt.

Aufteilung:
Die genaue Aufteilung entnehmen Sie bitte den beiliegenden Grundrissplan.

Parksituation:
Parkmöglichkeiten bieten die umliegenden Parkhäuser.

Mietpreis:
Der monatliche Mietpreis beträgt: Euro 10.000,00
zzgl. Nebenkosten und. MwSt. monatlich.

Bezug:
Januar 2020.

Kaution:
Verhandlung.

Provision:
Bitte berücksichtigen Sie die im Falle der Anmietung vom Mieter zu zahlende Provision in Höhe von:
2,38 Monatsmieten bei Verträgen bis zu 5 Jahren,
4,76 Monatsmieten bei Verträgen über 5 Jahre,
jeweils inklusive Mehrwertsteuer, Optionszeit = Laufzeit.

Besichtigung:
Bitte nur nach vorheriger Terminabsprache mit unserem Büro.

Hinweis:
Wir sind selbstverständlich bemüht, alle Angaben so richtig wie möglich an Sie weiter zu geben. Da wir uns auf die Informationen des Auftraggebers stützen müssen, übernehmen wir dafür keine Gewähr.
Besteht Vorkenntnis bei dem hier angebotenen Objekt, bitten wir Sie, uns dies unverzüglich mitzuteilen.

Energieausweis:
Verbrauchsausweis vom 26.03.2015
Energieendverbrauch Wärme: 83 kWh/(m²a)
Wesentlicher Energieträger Heizung: Fernwärme
Energieeffizienzklasse: D

Ansprechpartner

Bettina Hucko e. K.
Telefon: (0228) 934 900 6-0
Telefax: (0228) 934 900 6-99
bonn@hucko.de

Energieausweis (Verbrauchsausweis)

Energieausweis-Skala bis 790px
Energieausweis Positions Pfeil bis 790px 83 kWh / (m²*a) Energieverbrauchskennwert
Energieausweis-Skala bis 623px
Energieausweis Positions Pfeil bis 623px 83 kWh / (m²*a) Energieverbrauchskennwert
Energieausweis-Skala bis 768px
Energieausweis Positions Pfeil bis 768px 83 kWh / (m²*a) Energieverbrauchskennwert
Energieausweis-Skala bis 481px
Energieausweis Positions Pfeil bis 481px 83 kWh / (m²*a) Energieverbrauchskennwert
Energieausweis-Skala bis 320px
Energieausweis Positions Pfeil bis 320px 83 kWh / (m²*a) Energieverbrauchskennwert
Weitere Informationen
Wesentlicher EnergieträgerFernwärme
Energieausweis Ausstelldatum2015-03-26
Energieausweis gültig bis26.03.2025
Energieausweis Jahrgangab dem 1.5.2014
Energieausweis Stromwert30 kWh / (m²*a)
Energieausweis Wärmewert83 kWh / (m²*a)
Energieausweis WerteklasseD
Energieausweis Baujahr1983
Energieausweis GebäudeartGewerbe
HeizungFernheizung
BefeuerungFernwärme

Ich bin damit einverstanden, dass mir Karten von Google angezeigt werden. Es gelten die Datenschutzbedingungen von Google (https://policies.google.com/privacy).

Ich bin einverstanden

Objektanfrage

Sie haben noch Fragen zu dem Angebot oder wollen einen Besichtigungstermin vereinbaren, dann füllen Sie einfach das untenstehende Formular vollständig aus und wir setzen uns schnellstmöglich mit Ihnen in Verbindung.

* Pflichtfelder