1
Anzahl der Objekte: 1 | 1
Obj.: 1 | 1

Äußerst repräsentative Büroetage am Bonner Markt

Frontansicht Bürohaus Bonn
Frontansicht
2.700,- €
 
Ihre Nachbarschaft Bürohaus Bonn
Ihre Nachbarschaft
Büroansicht Bürohaus Bonn
Büroansicht
Besprechnungszimmer Bürohaus Bonn
Besprechnungszimmer
Empfang Bürohaus Bonn
Empfang
Einbauküche Bürohaus Bonn
Einbauküche
WC Bürohaus Bonn
WC
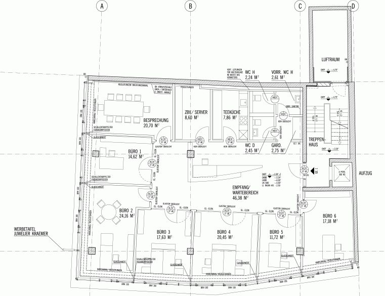
Grundriss Bürohaus Bonn
Grundriss

Objektart

Bürohaus

Adresse

53111 Bonn - Zentrum

Objektdaten

Objekt-Nr. H701
Fläche (ca.) 200 m²
Räume 7
Kaltmiete 2.700,- €
Informationen
Gesamtfläche (ca.)
200 m²
bezugsfrei ab
Sofort
Ausstattung
klimatisiert
Details
Aufzug
Personenaufzug
Provision für Mieter
2 Monatsmieten

Größe:
Ca. 200 m² im 1. Obergeschoss aufgeteilt in 7 unterschiedlich große Räume.

Das Gebäude wurde vor einigen Jahren kernsaniert.

Hier einige Details:

-moderne Haustechnik
-EDV-Verkabelung, Kat 7
-hochwertige Sanitärbereiche
-teilweise Klimaanlage
-in die Decke integrierte Beleuchtungskörper
-sehr schicke Einbauküche
-Glastüren
-Personenaufzug
-klimatisierter Serverraum
-Heller Vinylboden im Empfangsbereich, Teppichboden in den Büros

Eine Besichtigung dieser Fläche lohnt sich!

Die Bürofläche befindet sich in einem der markantesten Gebäude der Bonner-Innenstadt, direkt am Markt/Ecke Remigiusstraße.

Parksituation:
Parkmöglichkeiten bieten die umliegenden Parkhäuser (Marktgarage, Stiftsgarage etc.).

Aufteilung:
Die genaue Aufteilung entnehmen Sie bitte dem beiliegenden Grundrissplan.

Bezug:
Kurzfristig bzw. nach Vereinbarung.

Mietpreis:
Euro 2.700,00
zuzüglich Nebenkostenvorauszahlung und Mehrwersteuer monatlich.
(Es kann auch mehrwertsteuerfrei vermietet werden).

Provision:
Bitte berücksichtigen Sie die im Falle der Anmietung vom Mieter zu zahlende Provision in Höhe von:
2,38 Monatsmieten bei Verträgen bis zu 5 Jahren,
4,76 Monatsmieten bei Verträgen über 5 Jahre,
jeweils inklusive Mehrwertsteuer, Optionszeit = Laufzeit.


Kaution:
3 Monatsmieten

Besichtigung:
Bitte nur nach vorheriger Terminabsprache mit unserem Büro.

Hinweis:
Wir sind selbstverständlich bemüht, alle Angaben so richtig wie möglich an Sie weiterzugeben. Da wir uns auf die Informationen des Auftraggebers stützen müssen, übernehmen wir dafür keine Gewähr.
Besteht Vorkenntnis bei dem hier angebotenen Objekt, bitten wir Sie, uns dies unverzüglich mitzuteilen.

Energieausweis:
Energieverbrauchsausweis vom 04.05.2021, gültig bis 03.05.2031
Energiebedarf Wärme: 86,12 kWh (m²·a)
Wesentlicher Energieträger Heizung: Fernwärme
Energieeffizienzklasse: C
Baujahr: 2009

Ansprechpartner

Bettina Hucko e. K.
Telefon: (0228) 934 900 6-0
Telefax: (0228) 934 900 6-99
bonn@hucko.de

Energieausweis (Bedarfsausweis)

Energieausweis-Skala bis 790px
Energieausweis Positions Pfeil bis 790px 86,12 kWh / (m²*a) Endenergiebedarf
Energieausweis-Skala bis 623px
Energieausweis Positions Pfeil bis 623px 86,12 kWh / (m²*a) Endenergiebedarf
Energieausweis-Skala bis 768px
Energieausweis Positions Pfeil bis 768px 86,12 kWh / (m²*a) Endenergiebedarf
Energieausweis-Skala bis 481px
Energieausweis Positions Pfeil bis 481px 86,12 kWh / (m²*a) Endenergiebedarf
Energieausweis-Skala bis 320px
Energieausweis Positions Pfeil bis 320px 86,12 kWh / (m²*a) Endenergiebedarf
Weitere Informationen
Wesentlicher EnergieträgerFernwärme
Energieausweis Ausstelldatum2021-05-04
Energieausweis gültig bis03.05.2031
Energieausweis Jahrgangab dem 1.5.2014
Energieausweis Wärmewert86.12 kWh / (m²*a)
Energieausweis WerteklasseC
Energieausweis Baujahr2009
Energieausweis GebäudeartGewerbe
HeizungFernheizung
BefeuerungFernwärme

Ich bin damit einverstanden, dass mir Karten von Google angezeigt werden. Es gelten die Datenschutzbedingungen von Google (https://policies.google.com/privacy).

Ich bin einverstanden

Objektanfrage

Sie haben noch Fragen zu dem Angebot oder wollen einen Besichtigungstermin vereinbaren, dann füllen Sie einfach das untenstehende Formular vollständig aus und wir setzen uns schnellstmöglich mit Ihnen in Verbindung.

* Pflichtfelder